Description
Ideal Standard – Pare-bain droit 150 cm réversible chrome – Connect
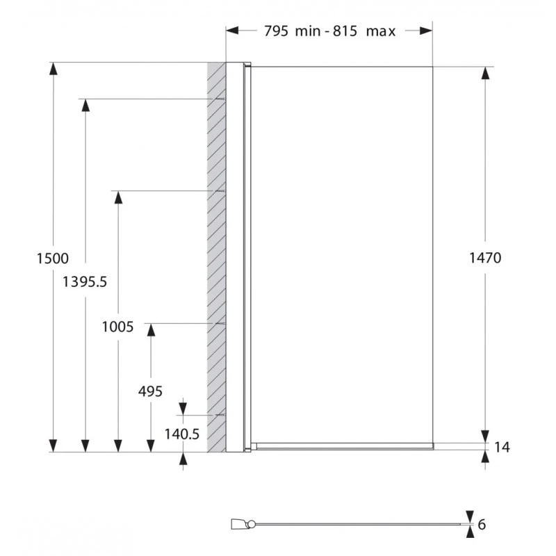
– Pare-bain droit composé d’un panneau mobile en verre transparent 6 mm
– Verre trempé de sécurité certifié CE et EN14428
– Profilés et charnières extra-plats, finition Argent brillant
– Traitement anti-calcaire Ideal Clean
– Compensation de 2 cm
– Réversible
Caractéristiques techniques :
Type de produit : Pare-baignoire
Forme : Droit
Hauteur : 150 cm
Longueur : 795 mm mini à 815 mm max
Finition : Chrome (AA)
Poids : 26 kg
Garantie 2 ans













Avis
Il n’y a pas encore d’avis.